一楼一凤论坛的最新消息今天唐人阁一品楼论坛 ,南昌一品楼凤qm论坛 ,唐人阁一品楼论坛,一品楼免费信息论坛一品楼qm凤楼论坛
Home
首页
About us
品牌故事
Cases
案例体验馆
Contact
联系我们
Our view
"设计是一种职业更因该是一种兴趣,设计作品不只是为了让客户满意,更应该、让自己满意"
"设计是一种职业更因该是一种兴趣,设计作品不只是为了让客户满意,更应该、让自己满意"
400-821-2821
021-64829197
预约量房
首页
>
办公室设计大全
> 正文
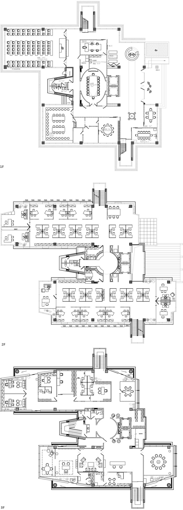
上海张江高科Westing办公室设计
2016-08-12 14:39:20
分享到:
QQ空间
新浪微博
腾讯微博
人人网
微信
TAG:
上一篇:
互联网营销公司开放式办公室设计
下一篇:
海湾协作公司办公室设计
文章分类
办公风水知识
办公装修问答
装修施工规范
办公软装知识
办公设计大全
办公装修大全
配套服务
办公家具
办公软装
办公绿化
办公风水
最新文章
上海办公室装修设计照明方案是什么?
办公室装修设计:流动式办公空间的特点
办公室装修设计:功能性与美观性的完美融合
开敞式办公空间的特点与装修设计
办公家具在办公室装修设计中的角色
办公室装修设计前厅区选择什么装修风格好?
揭秘办公室装修设计前厅的五大魅力,让您的企业门面熠熠生辉!
如何在办公室装修设计中巧妙设计前厅区
热门搜索
办公室装修报价
办公室装修预算
董事长办公室装修
办公室软装设计
办公室空间设计
办公室装修风格
相关案例
Cases
返回列表>>
推荐阅读
办公室装修设计:前厅区——打造第一印象的非凡舞台!
上海办公室装修设计:打造高效与惬意并存的茶歇区,你get了吗?
上海办公室装修设计:欧式茶几,古典韵味与现代商务的完美碰撞!
办公室装修设计:窗边坐靠走道,打造高效与美景并蓄的办公室新空间
办公室装修设计:精选推拉门款式,打造高效与美学并存的商务空间
上海办公室装修设计:弧形沙发如何巧妙布局,打造灵动办公空间!
上海办公室装修设计:解锁铝镁合金推拉门,打造高效时尚办公空间!
揭秘办公室装修设计首选:竹炭实心饰面板的五大魅力!
办公室装修设计如何精挑细选实木烤漆门
如何在办公室装修设计中巧妙设计前厅区
上海办公室装修设计:揭秘茶歇区最佳布局,打造高效与惬意并存的办公空间!
上海办公室装修设计:欧式茶几,让商务空间尽显高雅与品味!
办公室装修设计中办公桌的整体摆设艺术
办公室装修设计:木质推拉门,让商务空间焕发雅致与高效!
上海办公室装修设计如何精挑细选弧形沙发
上海办公室装修设计中,这些布局竟与推拉门“八字不合”!
办公室装修设计:如何选择竹炭实心饰面板
实木烤漆门:为何成为高端办公室装修设计首???
成功案例
|
办公家具
|
办公软装
|
办公风水
|
办公室设计大全
|
办公装修大全
|
办公装修
|
联系我们
|
工装案例
|
办公室装修
|
上海办公室装修
|
上海办公室装修设计
|
上海办公室装潢
|
办公装修
|
办公室装潢
|
上海办公室设计
|
办公室设计
|
办公装潢
|
上海办公室装饰
|
办公室装饰
|
办公室设计装修
|
办公装修设计
|
办公装饰
|
办公装饰公司
|
上海装修设计
|
办公室文化墙
|
上海装潢
|
室内装潢
24
小时服务热线
400-821-2821
沪ICP备09017603号-1
上海后街室内装潢有限公司
BACKSTREET INTERIOR CONSTRUCTION - SHANGHAI CHINA
Copyright ? Backstreet Constrction. All Rights Reserved.
在线咨询
热线电话
400-821-2821
在线留言
返回顶部